信辉·嘉华项目介绍
信辉·嘉華是专为港人打造的高端康养社区,坐落于中山市核心区域,毗邻中山市中医院及彩虹绿洲湿地公园,地理位置优越,自然环境优美。项目致力于为长者提供一个纯港式生活圈,融合高品质居住、专业医疗、丰富娱乐及便捷生活设施,打造六星级养老体验。

核心优势
便捷交通,无缝对接大湾区
项目附近约500米即有粤港巴士站,巴士车直达香港,轻松实现大湾区一小时生活圈,方便长者往返两地,可兼顾家庭与养老生活。

优质医疗,健康无忧
紧邻中山市中医院(中山市区唯一可使用香港医疗券的三甲医院),提供便捷的医疗服务。社区内设健康管理会所,配备港医港药服务平台,支持跨境救护车转运,确保长者健康得到全方位保障。

高端配套,品质生活
社区内规划有高品质康养公寓、空中植物园、住客健康会所等高端设施,公寓内部采用北欧风格装修,配备智能家居,营造温馨舒适的居住环境。

个性化服务,定制养老
提供5H服务(食、住、医、养、护),涵盖个性化适老家居、健康管理、跨境救护车转运等一站式服务。根据长者身体状况、兴趣爱好及生活习惯,量身定制服务方案,让长者享受定制式自家安老生活。

項目亮點
纯港式生活
圈楼下即为沿河香港风情街区及美食街区,满足长者对香港文化的怀念与需求。
六星级养老标准
以高品质养老社区为标准,精心规划全方位康养服务体系,提升长者生活品质。
政策支持,服务升级
积极响应政府优化大湾区养老安排的号召,依托政策支持,为长者提供更加全面、优质的养老服务。

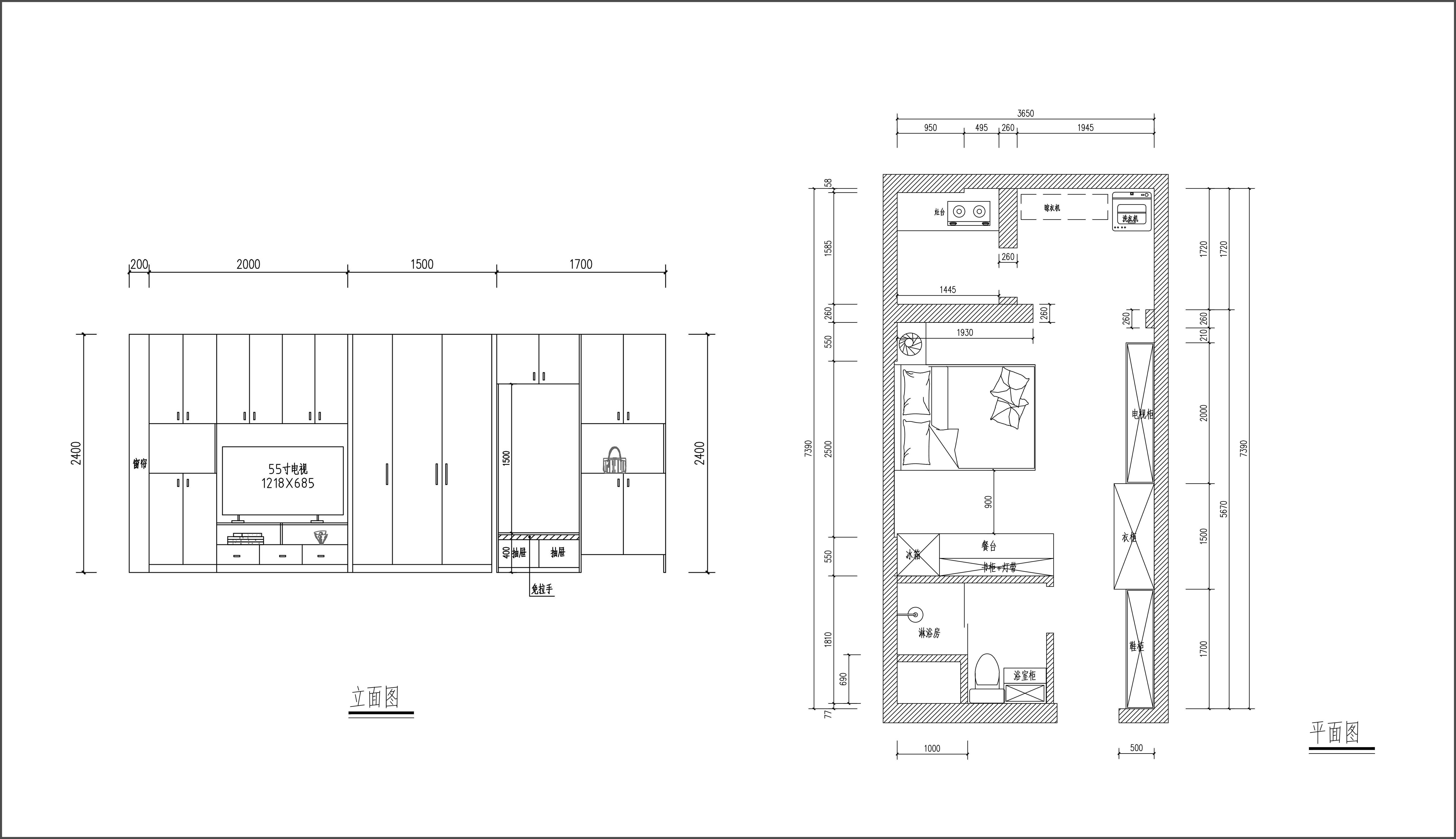
户型鉴赏
