信輝·嘉華项目介绍
信輝·嘉華是專爲港人打造的高端康養社區,坐落於中山市核心區域,毗鄰中山市中醫院及彩虹綠洲溼地公園,地理位置優越,自然環境優美。項目致力於爲長者提供一個純港式生活圈,融合高品質居住、專業醫療、豐富娛樂及便捷生活設施,打造六星級養老體驗。

核心優勢
便捷交通,無縫對接大灣區
項目附近約500米即有粵港巴士站,巴士車直達香港,輕鬆實現大灣區一小時生活圈,方便長者往返兩地,可兼顧家庭與養老生活。

優質醫療,健康無憂
緊鄰中山市中醫院(中山市區唯一可使用香港醫療券的三甲醫院),提供便捷的醫療服務。社區內設健康管理會所,配備港醫港藥服務平臺,支持跨境救護車轉運,確保長者健康得到全方位保障。

高端配套,品質生活
社區內規劃有高品質康養公寓、空中植物園、住客健康會所等高端設施,公寓內部採用北歐風格裝修,配備智能家居,營造溫馨舒適的居住環境。

個性化服務,定製養老
提供5H服務(食、住、醫、養、護),涵蓋個性化適老家居、健康管理、跨境救護車轉運等一站式服務。根據長者身體狀況、興趣愛好及生活習慣,量身定製服務方案,讓長者享受定製式自家安老生活。

項目亮點
純港式生活圈
樓下即爲沿河香港風情街區及美食街區,滿足長者對香港文化的懷念與需求。
六星級養老標準
以高品質養老社區爲標準,精心規劃全方位康養服務體系,提升長者生活品質。
政策支持,服務升級
積極響應政府優化大灣區養老安排的號召,依託政策支持,爲長者提供更加全面、優質的養老服務。

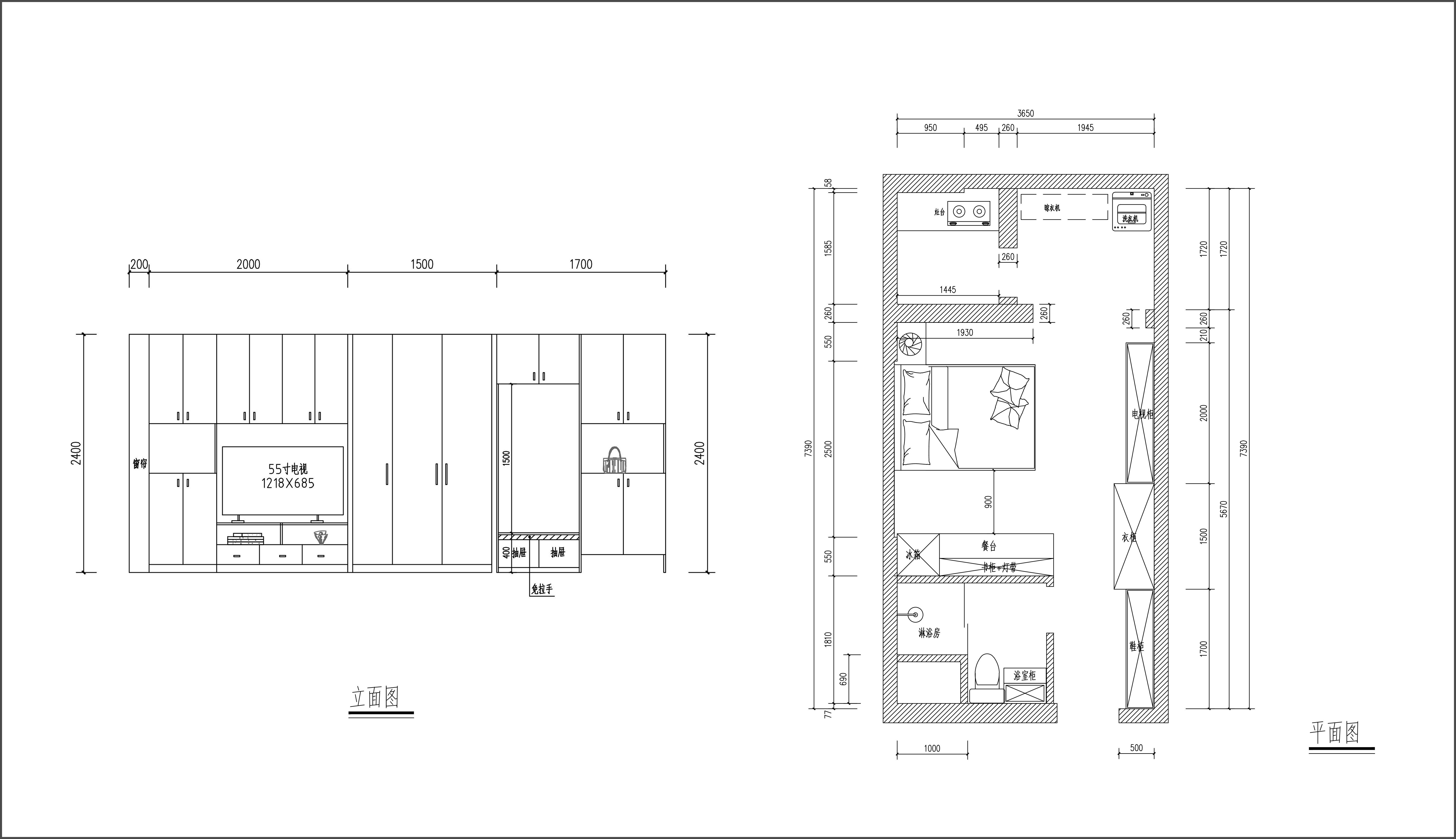
户型鉴赏
